Home » Without Label » 4 Bedroom Split Level Floor Plans : Split Level COOL House Plan ID: chp-498 | Total Living ... : Find 2, 3 & 4 bathroom designs, luxury home blueprints with basement & more!
4 Bedroom Split Level Floor Plans : Split Level COOL House Plan ID: chp-498 | Total Living ... : Find 2, 3 & 4 bathroom designs, luxury home blueprints with basement & more!
4 Bedroom Split Level Floor Plans : Split Level COOL House Plan ID: chp-498 | Total Living ... : Find 2, 3 & 4 bathroom designs, luxury home blueprints with basement & more!. The best one story 4 bedroom house floor plans. 4 bedrooms 4 beds 1.5 floor 2.5 bathrooms 2.5 baths 2 garage bays 2 garage plan: This is a clever way to create distinct zones, making it popular for families with children or older relatives. 4 beds 2.5 baths 2 stories 1 cars. Find 1 & 2 story home designs w/garage, basement, open layout & more!
Filter by secondary style (e.g. All of our house plans can be modified to fit your lot or altered to fit your unique needs. 4 bedroom 3 bathroom house plans, floor plans & designs. Thus, the windows are just above the ground level providing a lot of sunlight through the windows into the lower level. 4 bedrooms 4 beds 1.5 floor 2.5 bathrooms 2.5 baths 2 garage bays 2 garage plan:
Split Foyer House Plans Split Level House Plans 4 Bedroom ... from www.treesranch.com Find 1 & 2 story home designs w/garage, basement, open layout & more! It's always tricky to work out just from the plan where the fall would be on a split level home. These split bedroom plans allow for greater privacy for the master suite by placing it across the great room from the other bedrooms or on a separate floor. The best 4 bedroom 2.5 bathroom house floor plans. Features of split bedroom house plans. In a split level or split foyer floor plan, the front door opens to a landing or a floor containing the living room, dining room, and kitchen. Thus, the windows are just above the ground level providing a lot of sunlight through the windows into the lower level. The paxton is designed for both large families and challenging side sloping blocks.
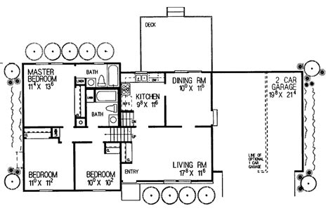
In other designs, one bedroom may also be included in the main floor but in this featured house three bedrooms are in the main floor while one big bedroom, must be the master bedroom.
Four bedroom split level house plan. One story 4 bedroom house plans, floor plans & designs. This type of layout is a common choice for families, especially those with older children, as it allows the parents to have easy access to their. Find 1 & 2 story farmhouse designs w/basement, craftsman ranch homes & more! There are many stories can be described in 4 bedroom split level house plans. All of our house plans can be modified to fit your lot or altered to fit your unique needs. May several collection of galleries to give you imagination, we think that the above mentioned are cool galleries. Find 1 & 2 story home designs w/garage, basement, open layout & more! More new house floor plan has split level style, hard say just many floors dynamic new split level homes. For added privacy, many of these extra bedrooms are separate from other bedrooms in the floor plan — in the basement, across a breezeway, above an attached garage, or as part of a third floor loft. A finished basement area provides room to grow. The best one story 4 bedroom house floor plans. Frequently you will find living and dining areas on the main level with bedrooms located on an upper level.
For added privacy, many of these extra bedrooms are separate from other bedrooms in the floor plan — in the basement, across a breezeway, above an attached garage, or as part of a third floor loft. The paxton is designed for both large families and challenging side sloping blocks. Find 1 & 2 story farmhouse designs w/basement, craftsman ranch homes & more! In a split level or split foyer floor plan, the front door opens to a landing or a floor containing the living room, dining room, and kitchen. 2021's leading website for split level, tri level & bi level house floor plans & designs.
4 Bedroom Home Design | Split Level House Plan - Saddleback from www.mincovehomes.com.au A finished basement area provides room to grow. One story 4 bedroom house plans, floor plans & designs. Thus, the windows are just above the ground level providing a lot of sunlight through the windows into the lower level. All of our house plans can be modified to fit your lot or altered to fit your unique needs. In other designs, one bedroom may also be included in the main floor but in this featured house three bedrooms are in the main floor while one big bedroom, must be the master bedroom. Distinct zones — because the split level allows for multiple floor spaces to overlap, bedrooms can be located on one floor and the living space on another level. Find a great selection of mascord house plans to suit your needs: Some mother in law suites even feature separate kitchenettes and living rooms to give the feel of a separate apartment, lending a greater sense of.
The best 4 bedroom 3 bath house floor plans.
Some mother in law suites even feature separate kitchenettes and living rooms to give the feel of a separate apartment, lending a greater sense of. Available with both half or full storey splits and the option to have the garage on the upper or lower level, the paxton also has variations for extended families with some plans featuring an. Find a great selection of mascord house plans to suit your needs: I have this split level 4 bedroom + study plan to show you. A finished basement area provides room to grow. 4 beds 2.5 baths 2 stories 1 cars. The best one story 4 bedroom house floor plans. Thanks for stopping by today. Plan 22489dr four bedroom split level house plan. This type of layout is a common choice for families, especially those with older children, as it allows the parents to have easy access to their. These split bedroom plans allow for greater privacy for the master suite by placing it across the great room from the other bedrooms or on a separate floor. But the facade is below so you can see the block of land would cut across … May several collection of galleries to give you imagination, we think that the above mentioned are cool galleries.
In a split level or split foyer floor plan, the front door opens to a landing or a floor containing the living room, dining room, and kitchen. The best 4 bedroom 3 bath house floor plans. Split bedroom house plans, floor plans & designs. Plan 22489dr four bedroom split level house plan. The best 4 bedroom 2.5 bathroom house floor plans.
Plan 90191PD: Split Level with In-Law Apartment | In-law ... from i.pinimg.com The paxton is designed for both large families and challenging side sloping blocks. Thanks for stopping by today. More new house floor plan has split level style, hard say just many floors dynamic new split level homes. Four bedroom house plans (sometimes written 4 bedroom floor plans) are popular with growing families, as they offer plenty of room for everyone. These split bedroom plans allow for greater privacy for the master suite by placing it across the great room from the other bedrooms or on a separate floor. Thus, the windows are just above the ground level providing a lot of sunlight through the windows into the lower level. Split bedroom house plans, floor plans & designs. But the facade is below so you can see the block of land would cut across …
These split bedroom plans allow for greater privacy for the master suite by placing it across the great room from the other bedrooms or on a separate floor.
2021's leading website for split level, tri level & bi level house floor plans & designs. Some mother in law suites even feature separate kitchenettes and living rooms to give the feel of a separate apartment, lending a greater sense of. One story 4 bedroom house plans, floor plans & designs. It's always tricky to work out just from the plan where the fall would be on a split level home. Thanks for stopping by today. Features of split bedroom house plans. In a split level or split foyer floor plan, the front door opens to a landing or a floor containing the living room, dining room, and kitchen. Thus, the windows are just above the ground level providing a lot of sunlight through the windows into the lower level. The best 4 bedroom 3 bath house floor plans. Three levels make it possible to locate and accommodate three types of living spaces: This is a clever way to create distinct zones, making it popular for families with children or older relatives. Split level homes offer living space on multiple levels separated by short flights of stairs up or down. Find 2, 3 & 4 bathroom designs, luxury home blueprints with basement & more!